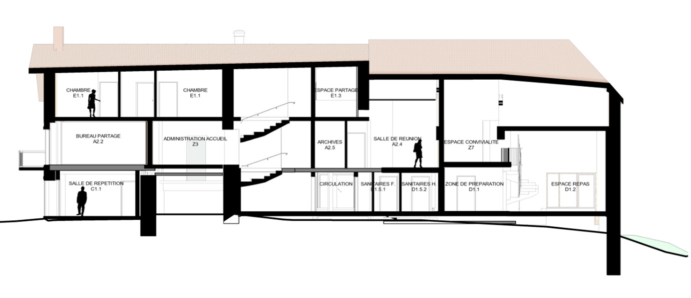
MOULIN DE BRAINANS À POLIGNY
Réhabilitation et extension du Moulin de Brainans en SMAC
-
MAÎTRE D'OUVRAGE
Communauté de Communes Arbois Poligny -
ARCHITECTE MANDATAIRE
OFFICE PARISIEN d’ARCHITECTURE Christophe BARTHELEMY -
Scénographie
Scenarchie -
Acoustique
PEUTZ -
Livraison
2025 -
MONTANT HT DES TRAVAUX
3 600 000 €

