SIÈGE SOCIAL CEVA SANTÉ ANIMALE À LIBOURNE
Construction du nouveau siège social du laboratoire mondial CEVA
-
MAÎTRE D'OUVRAGE
CEVA Santé animale -
Architecte mandataire
BLP & Associés -
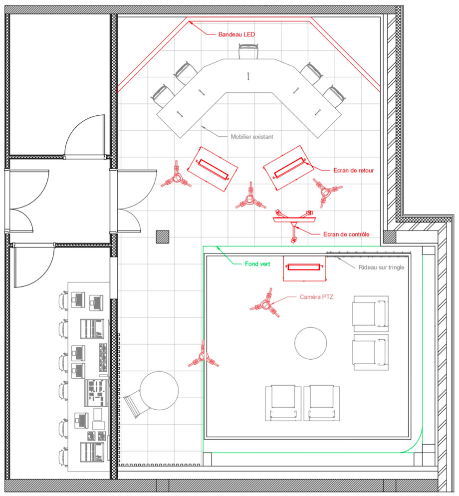
Scénographie et audiovisuel
SCENARCHIE -
Surface
12 700 m² -
Montant HT des travaux
NC

